Com 97,8 m² de área interna, a Sevilla é construída com paredes de abeto de 68 mm e telhado de duas águas com 3,31 m de altura. Possui 7 quartos, piso de tábuas de 28 mm e janelas com vidros duplos, tornando-a uma residência sólida para o ano todo ou uma espaçosa casa de férias.

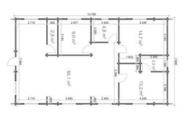
base_footprint Pegada base (M) 7,6 x 13,54
width_x_depth Largura do edifício x comprimento (m) 7,8 x 13,74
internal_area Área interna (m²) 97.9
ridge_height Altura do edifício (m, para o topo da cordilheira) 3.31
roof_overhang Opeu do telhado 0.4
roof_area Área do telhado (m²) 120.4
roof_boards Placas de telhado 19
side_wall_height Altura da parede lateral (M) 2.3
external_wall_surface Superfície da parede externa (m²) 95.0
floor_boards_thickness Espessura das tábuas de piso (mm) 28.0
quantity_of_doors Número de portas 7
doors_type Tipo de portas Solteiro
doors_size Largura das portas x altura (cm) 198 x 85
quantity_of_windows Número de janelas 10
windows_type Tipo de Windows Dobro, Solteiro
windows_size Largura do Windows x altura (cm) 92 x 130,92 x 70
glazing Tipo de janela e vidros de porta Vidrado duplo
shutters Persianas Sim
quantity_of_rooms Número de quartos 7
warranty garantia 60 meses
Sevilla 7,8x13,74 68mm_Instructions.pdf

Sevilla 7,8x13,74 68mm_Packing list.pdf

Visualization set