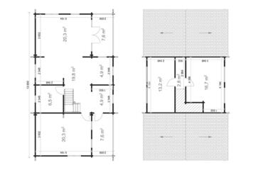
Esta espaciosa villa ofrece 109,4 m² de superficie interior con techo a dos aguas y paredes de 68 mm de grosor. Cuenta con 6 habitaciones y suelos de madera maciza de 28 mm para garantizar el confort durante todo el año.

base_footprint Medidas de la base 7,3x13,3
width_x_depth Medidas ancho x largo (m) 7,5x13,5
internal_area Espacio útil (m²) 109.4
ridge_height Altura máxima (m, desde la cumbrera) 5.67
roof_overhang Alero de tejado 0.3
roof_area Área del tejado (m²) 128.0
roof_boards Grosor de tabla de tejado (mm) 19
side_wall_height Altura de muro lateral (m) 2.3
external_wall_surface Área de muro exterior (m²) 139.0
floor_boards_thickness Grosor de la tabla de suelo (mm) 28.0
terraces_surface Área de la terraza (m²) 15.2
balconies_surface Superficie de balcones (m²) 0.0
quantity_of_rooms Número de estancias 5
warranty Garantía 60 Meses
Visualization set