Jennifer ofrece 65,4 m² de espacio interior con paredes de 68 mm y tablas de suelo de 28 mm. Su techo a dos aguas y sus amplios ventanales la convierten en la casa de verano de lujo ideal.

base_footprint Medidas de la base 10,3 x 8,32
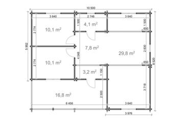
width_x_depth Medidas ancho x largo (m) 10,5 x 8,52
internal_area Espacio útil (m²) 65.1
ridge_height Altura máxima (m, desde la cumbrera) 3.31
roof_overhang Alero de tejado 0.2
roof_area Área del tejado (m²) 96.0
roof_boards Grosor de tabla de tejado (mm) 19
side_wall_height Altura de muro lateral (m) 2.3
external_wall_surface Área de muro exterior (m²) 96.0
floor_boards_thickness Grosor de la tabla de suelo (mm) 28.0
terraces_surface Área de la terraza (m²) 16.8
quantity_of_doors Número de puertas 4
doors_type Tipo de puertas Soltero
doors_size Puertas ancho x alto (cm) 198 x 85
quantity_of_windows Número de ventanas 6
windows_type Tipo de ventanas Double, Soltero
windows_size Ventanas ancho x alto (cm) 92 x 130,92 x 70
quantity_of_rooms Número de estancias 5
warranty Garantía 60 Meses
Jennifer 10,5x8,52 68mm_Patvirtinimui 0.pdf

Visualization set