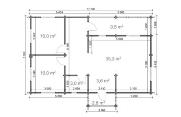
Markus combina 62,1 m² de espacio interior con una terraza cubierta de 12,3 m², construida con paredes de 68 mm, tablas de suelo de 28 mm y un techo a dos aguas de 3,24 m de altura. La distribución incluye 2 dormitorios, una amplia zona de estar y un cuarto de baño, ideal para su uso durante todo el año.

base_footprint Medidas de la base 6,9 x 9,9
width_x_depth Medidas ancho x largo (m) 7,1 x 11,1
internal_area Espacio útil (m²) 61.9
ridge_height Altura máxima (m, desde la cumbrera) 3.24
roof_overhang Alero de tejado 0.3
roof_area Área del tejado (m²) 97.3
roof_boards Grosor de tabla de tejado (mm) 19
side_wall_height Altura de muro lateral (m) 2.3
external_wall_surface Área de muro exterior (m²) 85.0
floor_boards_thickness Grosor de la tabla de suelo (mm) 28.0
terraces_surface Área de la terraza (m²) 12.3
quantity_of_doors Número de puertas 5
doors_type Tipo de puertas Soltero
doors_size Puertas ancho x alto (cm) 198 x 85
quantity_of_windows Número de ventanas 8
windows_type Tipo de ventanas Double, Soltero
windows_size Ventanas ancho x alto (cm) 92 x 130,52 x 50,92 x 70
glazing Tipo de acristalamiento de puertas y ventanas Doble acristalamiento
quantity_of_rooms Número de estancias 5
warranty Garantía 60 Meses
Markus 7,1x11,1_Instructions.pdf

Markus 7,1x11,1_Packing list.pdf

Visualization set