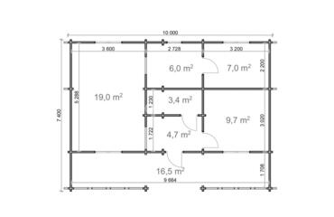
Este modelo cuenta con 49,8 m² de espacio interior y una terraza de 16,5 m², construido con paredes de 68 mm, suelos de 28 mm y un tejado a dos aguas con una altura máxima de 3,26 m. Incluye 2 dormitorios, un cuarto de baño y una amplia zona de salón-cocina, ideal para disfrutar de un relajado estilo de vida veraniego.

base_footprint Medidas de la base 7,2 x 9,8
width_x_depth Medidas ancho x largo (m) 7,4 x 10
internal_area Espacio útil (m²) 49.8
ridge_height Altura máxima (m, desde la cumbrera) 3.24
roof_overhang Alero de tejado 0.3
roof_area Área del tejado (m²) 82.9
roof_boards Grosor de tabla de tejado (mm) 19
side_wall_height Altura de muro lateral (m) 2.3
external_wall_surface Área de muro exterior (m²) 85.0
floor_boards_thickness Grosor de la tabla de suelo (mm) 28.0
terraces_surface Área de la terraza (m²) 16.5
quantity_of_doors Número de puertas 4
doors_type Tipo de puertas Soltero
doors_size Puertas ancho x alto (cm) 198 x 85
quantity_of_windows Número de ventanas 5
windows_type Tipo de ventanas Double, Soltero
windows_size Ventanas ancho x alto (cm) 92 x 130,92 x 70
glazing Tipo de acristalamiento de puertas y ventanas Doble acristalamiento
quantity_of_rooms Número de estancias 6
warranty Garantía 60 Meses
Maja 7,4x10 68mm_Instructions.pdf

Maja 7,4x10 68mm_Packing list.pdf

Visualization set