Markus combina 62,1 m² di spazio interno con una terrazza coperta di 12,3 m², costruita con pareti da 68 mm, pavimento da 28 mm e tetto a due falde alto 3,24 m. La disposizione comprende 2 camere da letto, un'ampia zona giorno e un bagno, ideale per un utilizzo durante tutto l'anno.

base_footprint Ingombro di base (m) 6,9 x 9,9
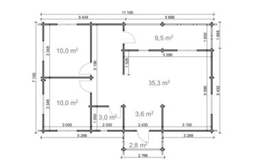
width_x_depth Larghezza x lunghezza dell'edificio (m) 7,1 x 11,1
internal_area Superficie interna (m²) 61.9
ridge_height Altezza dell'edificio (m, fino alla sommità del crinale) 3.24
roof_overhang Sporgenze del tetto 0.3
roof_area Superficie del tetto (m²) 97.3
roof_boards Spessore delle assi del tetto (mm) 19
side_wall_height Altezza parete laterale (m) 2.3
external_wall_surface Superficie della parete esterna (m²) 85.0
floor_boards_thickness Spessore delle assi del pavimento (mm) 28.0
terraces_surface Superficie terrazze (m²) 12.3
quantity_of_doors Numero di porte 5
doors_type Tipo di porte Separare
doors_size Larghezza x altezza porte (cm) 198 x 85
quantity_of_windows Numero di finestre 8
windows_type Tipo di finestra Raddoppiare, Separare
windows_size Larghezza x altezza delle finestre (cm) 92 x 130,52 x 50,92 x 70
glazing Tipo di vetratura di finestre e porte Doppi vetri
quantity_of_rooms Numero di camere 5
warranty Garanzia 60 mesi
Markus 7,1x11,1_Instructions.pdf

Markus 7,1x11,1_Packing list.pdf

Visualization set