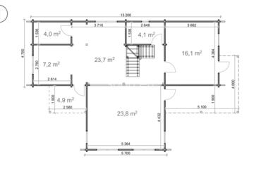
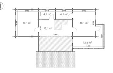
Porto é uma moradia de dois andares com 132,4 m² de área interna. Com paredes de 58 mm e tábuas de piso de 19 mm, foi concebida para famílias numerosas ou para alojamento comercial.

base_footprint Pegada base (M) 9 x 13
width_x_depth Largura do edifício x comprimento (m) 9,2 x 13,2
internal_area Área interna (m²) 131.8
ridge_height Altura do edifício (m, para o topo da cordilheira) 6.05
roof_overhang Opeu do telhado 0.4
roof_area Área do telhado (m²) 116.2
side_wall_height Altura da parede lateral (M) 2.49
external_wall_surface Superfície da parede externa (m²) 179.0
floor_boards_thickness Espessura das tábuas de piso (mm) 19.0
terraces_surface Terraços superficiais (m²) 17.4
balconies_surface Valas superficiais (m²) 12.5