With 44 mm walls, 28 mm floor boards, and a gable roof reaching 3.3 m, Jennifer offers 65.4 m² of internal space and a 16.6 m² terrace. The layout includes 2 bedrooms, a large open-plan living/kitchen area, and a bathroom—perfect for full-time residence.

base_footprint Pegada base (M) 10.3 x 8.32
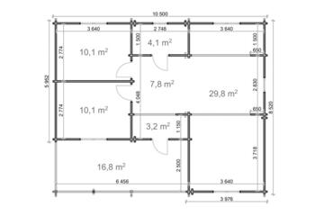
width_x_depth Largura do edifício x comprimento (m) 10.5 x 8.52
internal_area Área interna (m²) 81.0
ridge_height Altura do edifício (m, para o topo da cordilheira) 3.3
roof_overhang Opeu do telhado 0.3
roof_area Área do telhado (m²) 98.2
roof_boards Placas de telhado 28
side_wall_height Altura da parede lateral (M) 2.3
external_wall_surface Superfície da parede externa (m²) 96.0
floor_boards_thickness Espessura das tábuas de piso (mm) 28.0
terraces_surface Terraços superficiais (m²) 16.6
quantity_of_doors Número de portas 4
doors_type Tipo de portas Solteiro
doors_size Largura das portas x altura (cm) 198 x 85
quantity_of_windows Número de janelas 6
windows_type Tipo de Windows Dobro, Solteiro
windows_size Largura do Windows x altura (cm) 92 x 130,92 x 70
glazing Tipo de janela e vidros de porta Vidrado duplo
quantity_of_rooms Número de quartos 5
warranty garantia 60 meses