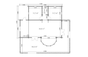
Wiedeń oferuje 103,9 m² powierzchni wewnętrznej z dwuspadowym dachem i ścianami drewnianymi o grubości 58 mm. Składa się z 4 pokoi i ma podłogę z desek o grubości 19 mm, co zapewnia czysty i elegancki układ.

base_footprint Powierzchnia podstawy (m) 8,1 x 10,8
width_x_depth Szerokość budynku x długość (m) 8,3 x 11
internal_area Powierzchnia domu (m²) 83.2
ridge_height Wysokość budynku (m, do szczytu kalenicy) 3.71
roof_overhang Zwis dachu 0.3
roof_area Powierzchnia dachu (m²) 103.2
side_wall_height Wysokość ściany bocznej (m) 2.56
external_wall_surface Powierzchnia zew. ścian (m²) 96.0
floor_boards_thickness Grubość desek podłogi (mm) 19.0
terraces_surface Powierzchnia tarasów (m²) 54.2