Talinn ma powierzchnię wewnętrzną 93,4 m² z dwuspadowym dachem i ścianami o grubości 58 mm. Składa się z 4 pokoi i ma podłogę z desek o grubości 19 mm, co daje elastyczny układ pomieszczeń.

base_footprint Powierzchnia podstawy (m) 4,8x9,8
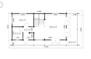
width_x_depth Szerokość budynku x długość (m) 5x10
internal_area Powierzchnia domu (m²) 93.4
ridge_height Wysokość budynku (m, do szczytu kalenicy) 5.5
roof_overhang Zwis dachu 0.3
roof_area Powierzchnia dachu (m²) 106.0
roof_boards Deski dachowe 19
side_wall_height Wysokość ściany bocznej (m) 2.77
external_wall_surface Powierzchnia zew. ścian (m²) 82.0
floor_boards_thickness Grubość desek podłogi (mm) 19.0
terraces_surface Powierzchnia tarasów (m²) 17.2
balconies_surface Powierzchnia balkonów (m²) 10.8