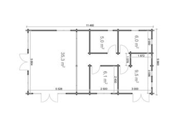
Orchidea ma powierzchnię wewnętrzną 61,9 m² z ścianami o grubości 58 mm i deskami podłogowymi o grubości 19 mm. Dwuspadowy dach i układ wielopokojowy sprzyjają luksusowemu stylowi życia lub dłuższym pobytom.

base_footprint Powierzchnia podstawy (m) 5,8 x 11,3
width_x_depth Szerokość budynku x długość (m) 6 x 11,5
internal_area Powierzchnia domu (m²) 61.9
ridge_height Wysokość budynku (m, do szczytu kalenicy) 2.97
roof_overhang Zwis dachu 0.18
roof_area Powierzchnia dachu (m²) 77.0
side_wall_height Wysokość ściany bocznej (m) 2.3
external_wall_surface Powierzchnia zew. ścian (m²) 64.0
floor_boards_thickness Grubość desek podłogi (mm) 19.0