Jennifer oferuje 65,4 m² powierzchni wewnętrznej ze ścianami o grubości 68 mm i deskami podłogowymi o grubości 28 mm. Dwuspadowy dach i duże przeszklenia sprawiają, że idealnie nadaje się na luksusowy domek letniskowy.

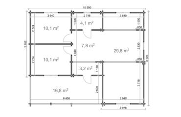
base_footprint Powierzchnia podstawy (m) 10,3 x 8,32
width_x_depth Szerokość budynku x długość (m) 10,5 x 8,52
internal_area Powierzchnia domu (m²) 65.1
ridge_height Wysokość budynku (m, do szczytu kalenicy) 3.31
roof_overhang Zwis dachu 0.2
roof_area Powierzchnia dachu (m²) 96.0
roof_boards Deski dachowe 19
side_wall_height Wysokość ściany bocznej (m) 2.3
external_wall_surface Powierzchnia zew. ścian (m²) 96.0
floor_boards_thickness Grubość desek podłogi (mm) 28.0
terraces_surface Powierzchnia tarasów (m²) 16.8
quantity_of_doors Liczba drzwi 4
doors_type Typ drzwi Pojedyncze
doors_size Szerokość drzwi x wysokość (cm) 198 x 85
quantity_of_windows Liczba okien 6
windows_type Typ okna Podwójne, Pojedyncze
windows_size Szerokość okna x wysokość (cm) 92 x 130,92 x 70
quantity_of_rooms Liczba pokoi 5
warranty Gwarancja 60 miesiące
Jennifer 10,5x8,52 68mm_Patvirtinimui 0.pdf

Visualization set