Hugo provides 113.3 m² of internal space with a gable roof and 44 mm timber walls. It includes 5 rooms and 28 mm floor boards, offering a refined and spacious layout.

base_footprint Základná stopa (M) 8,12x11,87
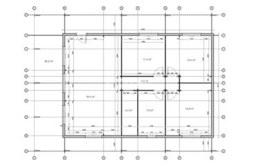
width_x_depth Šírka budovy x dĺžka (m) 8,32x12,07
internal_area Vnútorná oblasť (m²) 104.0
ridge_height Výška budovy (M, na vrchol hrebeňa) 3.65
roof_overhang Previs 0.4
roof_area Plocha strechy (m²) 180.0
roof_boards Strešné dosky 19
side_wall_height Výška bočnej steny (m) 2.09
external_wall_surface Vonkajší povrch steny (m²) 103.0
floor_boards_thickness Hrúbka podlahových dosiek (mm) 19.0
terraces_surface Povrch terasy (m²) 56.5
balconies_surface Balkány povrch (m²) 0.0
warranty Záruka 60 mesiace