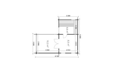
A premium sauna with 44 mm wall thickness, and 19 mm floor boards. It includes 2 rooms and covers 38.5 m²—designed for luxury and tranquility.

internal_area Vnútorná oblasť (m²) 0.0
roof_boards Strešné dosky 19
floor_boards_thickness Hrúbka podlahových dosiek (mm) 19.0
terraces_surface Povrch terasy (m²) 10.66
balconies_surface Balkány povrch (m²) 0.0
warranty Záruka 60 mesiace
Visualization set