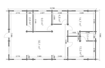
Covering 97.8 m² of internal space, Sevilla is built from 44 mm spruce walls with a gable roof rising to 3.31 m. It features 7 rooms, 19 mm floor boards, and double-glazed windows, making it a solid year-round residence or spacious holiday home.

internal_area Vnútorná oblasť (m²) 0.0
roof_boards Strešné dosky 19
floor_boards_thickness Hrúbka podlahových dosiek (mm) 19.0
warranty Záruka 60 mesiace