Porto offering 132.4 m² of internal space. With 68mm walls and 28mm floor boards, it’s designed for large families or commercial hosting.

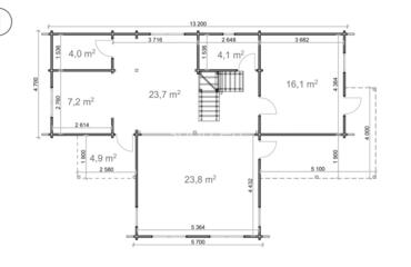
base_footprint Základná stopa (M) 9 x 13
width_x_depth Šírka budovy x dĺžka (m) 9,2 x 13,2
internal_area Vnútorná oblasť (m²) 131.8
ridge_height Výška budovy (M, na vrchol hrebeňa) 6.05
roof_overhang Previs 0.4
roof_area Plocha strechy (m²) 116.2
roof_boards Strešné dosky 19
side_wall_height Výška bočnej steny (m) 2.49
external_wall_surface Vonkajší povrch steny (m²) 179.0
floor_boards_thickness Hrúbka podlahových dosiek (mm) 28.0
terraces_surface Povrch terasy (m²) 17.4
balconies_surface Balkány povrch (m²) 12.5
quantity_of_doors Počet dverí 11
doors_type Typ dverí Slobodný
doors_size Dvere Šírka x výška (CM) 198 x 85
quantity_of_windows Počet okien 14
windows_type Typ systému Windows Zdvojnásobiť, Slobodný
windows_size Šírka Windows x výška (cm) 92 x 130,52 x 50,198 x 150,92 x 70,198 x 50
quantity_of_rooms Číslo izieb 10
warranty Záruka 60 mesiace
Visualization set