Porto es una villa de dos plantas con una superficie interior de 132,4 m². Con paredes de 68 mm y suelos de 28 mm, está diseñada para familias numerosas o para uso comercial.

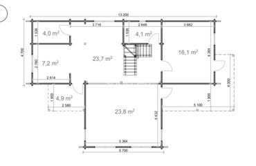
base_footprint Medidas de la base 9 x 13
width_x_depth Medidas ancho x largo (m) 9,2 x 13,2
internal_area Espacio útil (m²) 131.8
ridge_height Altura máxima (m, desde la cumbrera) 6.05
roof_overhang Alero de tejado 0.4
roof_area Área del tejado (m²) 116.2
roof_boards Grosor de tabla de tejado (mm) 19
side_wall_height Altura de muro lateral (m) 2.49
external_wall_surface Área de muro exterior (m²) 179.0
floor_boards_thickness Grosor de la tabla de suelo (mm) 28.0
terraces_surface Área de la terraza (m²) 17.4
balconies_surface Superficie de balcones (m²) 12.5
quantity_of_doors Número de puertas 11
doors_type Tipo de puertas Soltero
doors_size Puertas ancho x alto (cm) 198 x 85
quantity_of_windows Número de ventanas 14
windows_type Tipo de ventanas Double, Soltero
windows_size Ventanas ancho x alto (cm) 92 x 130,52 x 50,198 x 150,92 x 70,198 x 50
quantity_of_rooms Número de estancias 10
warranty Garantía 60 Meses
Visualization set